Om Business Center
Fagmiljø
Kontakt oss
Om Business Center
Fagmiljø
Kontakt oss
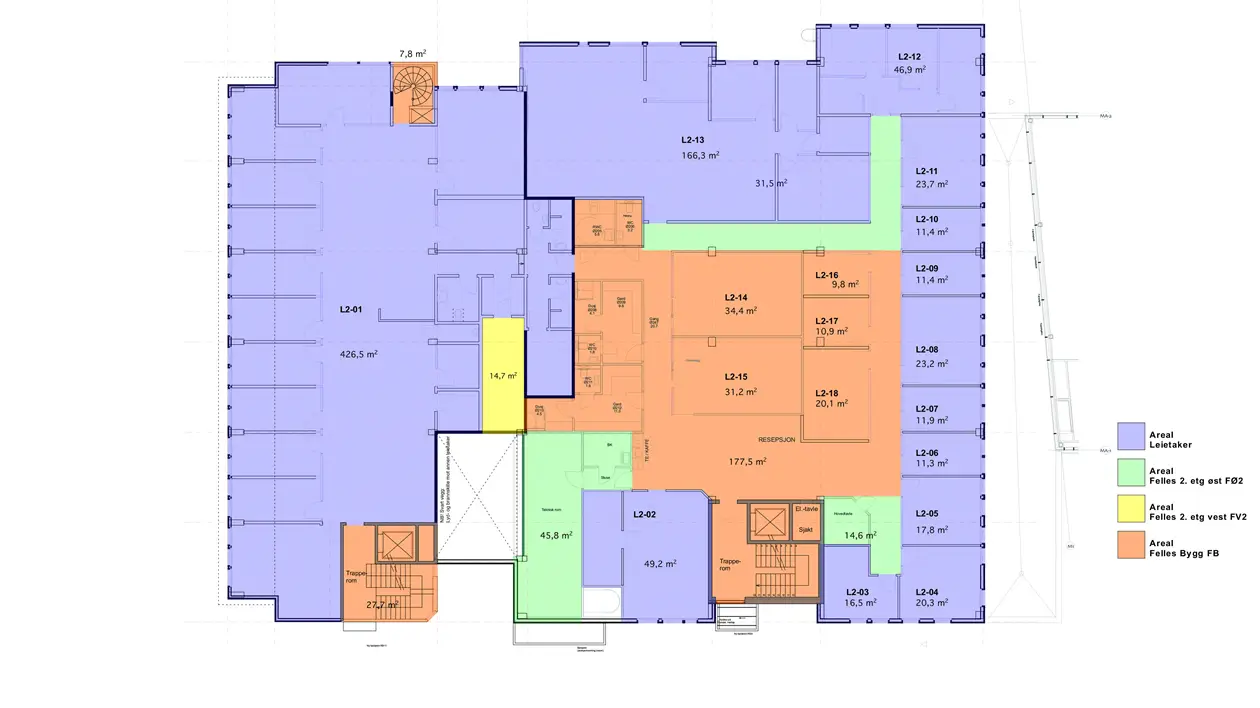
2.etasje
OVERSIKT
|
INTERAKTIV TOUR
|
PLANTEGNING
Areal:
Ansatte:
Status:
Klikk i listen for å markere kontor
Kontor
Areal
Brutto areal
Møblering
Antall ansatte
Status
L2-08
23
Nei
2-4
Ledig
L2-06
11
Ja
1
Ledig
L2-07
12
Nei
1
Ledig
L2- 03
17
Nei
1
Ledig
L2-05
17
Ja
1-2
Ledig
L2-10
12
Nei
1
Ledig
L2-02
49
Nei
3-4
Ledig
L2-09
11
Nei
1
Ledig
Plantegning
Ønsker du en omvisning?
Ta kontakt med Trond Toppe for en presentasjon av lokalene i BCS.
Kontakt
Kontakt oss